Koivula, Turku

1.1.2026
Murkionkatu 12:n uudet talot nousevat vehreään Koivulaan, Kakkaraistenpuiston laidalle. Ensimmäisinä valmistuvat yli 55-vuotiaille suunnatut kodit A- ja B-taloihin, ja myöhemmin alue täydentyy C-, D- ja E-taloilla, joissa on viihtyisiä vuokrakoteja kaikenikäisille asukkaille.
Tervetuloa kaikille avoimeen yleisesittelyyn keskiviikkona 5.11. klo 17.30–18.00 osoitteeseen Murkionkatu 12, 20740 Turku.
Murkionkatu 12:n talot sijaitsevat Koivulan viihtyisässä ja vehreässä kaupunginosassa, Kakkaraistenpuiston laidalla. Viidestä kerrostalosta ensimmäisenä valmistuvat yli 55-vuotiaille suunnatut kodit viisikerroksisiin A- ja B-taloihin. Talot valmistuvat vuoden 2025 loppuun mennessä. Myöhemmin valmistuvat seitsemänkerroksiset C-, D- ja E-talot, joissa on valtion tukemia vuokrakoteja kaikenikäisille asukkaille. C-, D- ja E-talojen arvioitu valmistumisaika on loppusyksystä 2026.
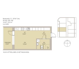
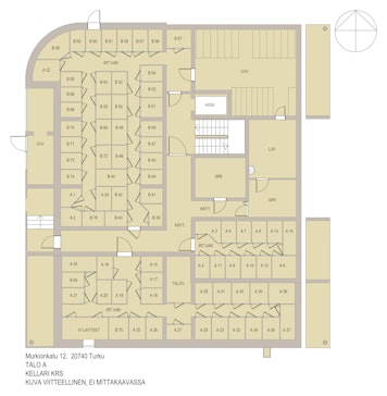
Kaikissa A- ja B-talojen asunnoissa on lasitetut parvekkeet, ja kylpyhuoneisiin on asennettu kääntyvät wc-tukikaiteet. 51 neliön kaksioissa on olohuoneessa kaunis kaareva seinä, joka tuo tilaan luonnetta ja tarjoaa mahdollisuuden luoviin sisustusratkaisuihin. Asukkaiden yhteistiloja ovat kerhohuone, sauna, pesutupa ja kuivaushuone. Kerhohuone yhdistää A- ja B-talon ja tarjoaa asukkaille mukavan kohtaamispaikan. Talot sijaitsevat ympäröivää asuntokantaa korkeammalla, ja pihaan pääsee kulkemaan joko portaita tai loivaa katua pitkin. Talojen keskelle jää rauhallinen ja viihtyisä pihapiiri. Kohteella löytyy vuokrattavia autopaikkoja, lemmikit ovat tervetulleita, ja laajakaistayhteys sisältyy vuokraan.
Koivula on kuuden kilometrin päässä Turun keskustasta, Kaarinan kaupungin rajalla. Aluetta ympäröivät puistot ja metsäiset lenkkipolut tarjoavat asukkaille upeat puitteet ulkoiluun. Koivulassa on myös oma pieni ostoskeskus, jossa on muun muassa kauppa ja apteekki. Kauppakeskus Skanssin ja Kaarinan keskustan monipuoliset palvelut ovat lähietäisyydellä. Alueelta on hyvät julkisen liikenteen yhteydet Turun keskustaan.
Yksittäisten asuntojen kuvat ovat esimerkkejä talojen asunnoista.
murkionkatu 12, 20740 turku